- Woonoppervlakte
- Circa 52 m²
- Inhoud
- Circa 176 m³
- Bouwjaar
- Gebouwd in 1925
- Aantal kamers
- 2 kamers (1 slaapkamer)
Hele lichte woning gelegen op de eerste verdieping met prachtige uitzicht op de Vredeskerk in de populaire Pijp en balkon op het westen.
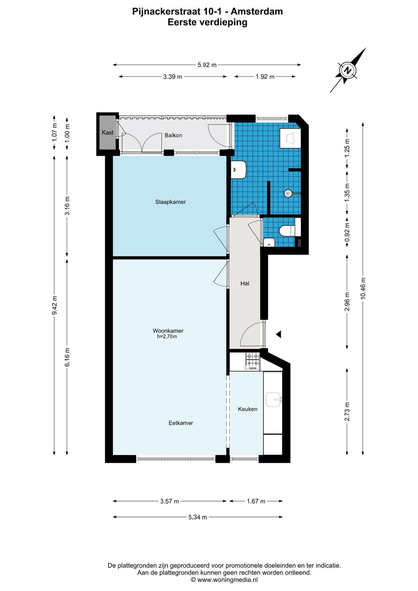
Indeling
Gemeenschappelijke entree, via brede trappenhuis naar de eerste verdieping, meterkast op de gemeenschappelijk trappenhuis, hal, lichte woonkamer, open moderne keuken welk voorzien is van vaatwasser, oven, magnetron, koel -vrieskast en gasfornuis met ingebouwde afzuigkap en voldoende kastruimte. Slaapkamer met deur naar balkon gelegen op het westen en de ruime badkamer met douche, wastafel, plaats voor wasmachine/ droger tevens hangt hier de Intergas CV-installatie uit 2019. Er is nog een separaat toilet met wastafel.
Woning is voorzien van een houten laminaat vloer en aan de voorzijde kunststof kozijnen en dubbel glas.
De Vereniging van Eigenaren
De VvE genaamd ‘Pijnackerstraat 10’. De servicekosten voor de woning bedragen € 137,60 per maand.
Locatie
De woning ligt in de Amsterdamse Pijp in stadsdeel Zuid. Deze buurt kenmerkt zich door de vele leuke restaurants, de ontelbare gezellige (eet)cafés, een grote diversiteit aan (boetiek)winkels en de beroemde Albert Cuypmarkt. Deze markt ligt dichtbij genoeg om heerlijk boodschappen te doen, maar ook ver genoeg weg om er geen overlast van te hebben. Verder liggen ook het Sarphatipark het Vondelpark, de Amstel, de Ferdinand Bolstraat en de Ceintuurbaan op loopafstand.
De bereikbaarheid
Het openbaar vervoer is geweldig; zowel de tram, de metro als de bus stoppen om de hoek. Amsterdam RAI of station Zuid liggen op nog geen 10 minuten fietsen. En de directe ligging aan de ring maakt dat je zo in en uit de Randstad bent en Schiphol ligt op minder dan 20 minuten rijden.
Parkeren
Betaald parkeren op de openbare weg en met een vergunningstelsel, vergunninggebied Zuid 3.2. Voor meer informatie zie de website van de gemeente Amsterdam.
Duurzaamheid en energielabel
Label E geldig tot en met 26 oktober 2031.
De woning is deels voorzien van dubbel glas in kunststof kozijnen.
Erfpacht
Op de woning rust voortdurend recht van erfpacht uitgegeven door de gemeente Amsterdam, het huidige tijdvak loopt tot en met 1 januari 2047 en bedraagt voor 2025 € 412,--. Verkoper heeft de erfpacht vastgezet voor na huidige tijdvak voor € 1.113,-- excl. indexering.
Bestemming
Wonen
Bijzonderheden
NEN-2580 52m2 bruto 58m2;
Balkon 6m2;
Bouwjaar 1925;
Maandelijkse bijdrage VvE bedraagt ca € 137,60
Intergas CV-installatie 2019;
Niet-bewonersclausule en ouderdomsclausule van toepassing;
Gunstig gelegen t.o.v. faciliteiten;
Opleveren in overleg;
Verkoper behoudt zich het recht van gunning voor;
---------------------------------------------------------------------------
Very bright apartment on the first floor offering a beautiful view of the Vredeskerk, located in the popular De Pijp area, and featuring a west-facing balcony.
Layout
Shared entrance with a well-maintained and wide staircase leading to the first floor, meter cupboard in the communal stairwell, hallway, bright living room, and open modern kitchen equipped with a dishwasher, oven, microwave, fridge-freezer, gas stove with built-in extractor, and ample cupboard space. The bedroom has access to the west-facing balcony. The spacious bathroom features a shower, washbasin, and space for a washing machine and dryer. The Intergas central heating system (2019) is also located here. There is a separate toilet with a washbasin. The apartment has a neat wooden floor and double-glazed plastic window frames at the front.
Homeowners’ Association
The homeowners’ association is named “Pijnackerstraat 10.” The monthly service charges amount to €137.60.
Location
The apartment is situated in the lively De Pijp neighborhood in the Zuid district of Amsterdam. This area is known for its many restaurants, countless cozy cafés, a wide variety of boutique shops, and the famous Albert Cuyp Market. The market is close enough for convenient grocery shopping, yet far enough to avoid disturbance. The Sarphatipark, Vondelpark, the Amstel River, Ferdinand Bolstraat, and Ceintuurbaan are all within walking distance.
Accessibility
Public transport connections are excellent, with tram, metro, and bus stops just around the corner. Amsterdam RAI and Station Zuid can be reached within ten minutes by bike, and the direct access to the ring road makes it easy to travel in and out of the Randstad. Schiphol Airport is less than a 20-minute drive away.
Parking
Paid parking is available on public roads under a permit system, in permit area Zuid 3.2. For more information, consult the City of Amsterdam website.
Sustainability and Energy Label
Energy label E, valid until 26 October 2031. The apartment is partly fitted with double glazing in plastic frames.
Leasehold
The property is subject to continuous leasehold issued by the Municipality of Amsterdam. The current period runs until 1 January 2047, with an annual ground rent of €412 for 2025. The seller has fixed the perpetual leasehold terms after the current period for €1,113 excluding indexation.
Zoning
Residential use.
Details
NEN-2580: 52 m² gross, 58 m² total;
Balcony: 6 m²;
Year of construction: 1925;
Monthly VvE contribution: approx. €137.60;
Intergas central heating system 2019;
Non-occupancy clause and age clause apply;
Conveniently located near all amenities;
Delivery in consultation;
Seller reserves the right to award the property.
Rechtsgeldige koopovereenkomst pas ná ondertekening
Een mondelinge overeenstemming tussen de particuliere verkoper en de particuliere koper is niet rechtsgeldig. Met andere woorden: er is geen koop. Er is pas sprake van een rechtsgeldige koop als de particuliere verkoper en de particuliere koper de koopovereenkomst hebben ondertekend. Dit vloeit voort uit artikel 7:2 Burgerlijk Wetboek. Een bevestiging van de mondelinge overeenstemming per e-mail of een toegestuurd concept van de koopovereenkomst wordt overigens niet gezien als een ‘ondertekende koopovereenkomst’.
Vraag altijd naar de lijst van zaken. De in deze brochure omschreven zaken horen niet altijd bij de woning en gaan soms mee en zijn soms ter overname.
Niet bewoningsclausule zal worden opgenomen, de woning is verhuurd geweest.
Algemene ouderdomsclausule?
Koper verklaart ermee bekend te zijn dat het Verkochte deel uitmaakt van een oud gebouw betreft, hetgeen inhoudt dat de eisen die aan de bouwkwaliteit gesteld mogen worden aanzienlijk lager liggen dan bij nieuwe(re) woningen. Tenzij Verkoper de kwaliteit ervan heeft gegarandeerd, staat hij niet in voor de kwaliteit van onder andere vloeren, dak, de fundering, de rookkanalen, de leidingen voor elektriciteit, water en gas, de riolering, eventuele aanwezigheid van enig ongedierte casu quo schimmels (zwam en dergelijke) en/of houtworm en boktor en de afwezigheid van doorslaand of optrekkend vocht. Bouwkundige kwaliteitsgebreken worden geacht niet belemmerend te werken op het in artikel 6 lid c omschreven door Koper voorgenomen gebruik van het Verkochte. Koper aanvaardt alle in verband met vorenbedoelde lagere bouwkwaliteit voorzienbare of te verwachten tekortkomingen van het Verkochte, ook voor zover die een tijdelijke belemmering voor het normaal gebruik van het Verkochte kunnen zijn.
Deze woning is gemeten volgens de Meetinstructie. De Meetinstructie is gebaseerd op de NEN2580. De Meetinstructie is bedoeld om een meer eenduidige manier van meten toe te passen voor het geven van een indicatie van de gebruiksoppervlakte. De Meetinstructie sluit verschillen in meetuitkomsten niet volledig uit, door bijvoorbeeld interpretatieverschillen, afrondingen of beperkingen bij het uitvoeren van de meting. Hoewel wij de woning met veel zorg hebben opgemeten kan het zijn dat er verschillen zijn in de afmetingen. Noch verkoper noch de makelaar accepteert enige aansprakelijkheid voor deze verschillen. De maatvoeringen worden door ons gezien als zuiver indicatief. Indien de exacte maatvoering voor u van belang is, raden wij u aan de maten zelf te (laten) meten. In dit kader merken wij op dat het Ministerie van VROM bij de basisregistraties een afwijking van 15% toelaatbaar acht. Wij gaan uit van eenzelfde toelaatbaar verschil. Hierbij zijn geen interpretatieverschillen in meegenomen. Deze kunnen leiden tot een extra verschil. Lees de volledige omschrijving
Overdracht
- Vraagprijs
- € 425.000 k.k.
- Status
- Beschikbaar
- Aanvaarding
- In overleg
- Bijdrage VvE
- € 137,60 per maand
Bouw
- Object type
- Tussenverdieping (appartement)
- Soort bouw
- Bestaande bouw
- Bouwjaar
- 1925
- Soort dak
- Plat dak bedekt met bitumineuze dakbedekking
Oppervlakte en inhoud
- Woonoppervlakte
- 52 m²
- Inhoud
- 176 m³
- Gebouwgeb. buitenruimte
- 6 m²
Indeling
- Aantal kamers
- 2 kamers (1 slaapkamer)
- Aantal badkamers
- 1 badkamer en 1 apart toilet
- Badkamervoorzieningen
- Douche en wastafel
- Aantal woonlagen
- 4 woonlagen
- Gelegen op
- 2e woonlaag
- Voorzieningen
- Rookkanaal en TV kabel
Energie
- Energielabel
- E
- Isolatie
- Gedeeltelijk dubbel glas
- Verwarming
- Cv-ketel
- Warm water
- Cv-ketel
- Cv ketel
- Intergas (gas gestookt combiketel uit 2019, eigendom)
Buitenruimte
- Ligging
- Aan rustige weg en vrij uitzicht
- Balkon / dakterras
- Balkon aanwezig
Parkeergelegenheid
- Soort parkeergelegenheid
- Betaald parkeren en parkeervergunningen
VvE checklist
- Inschrijving KvK
- Ja
- Jaarlijkse vergadering
- Ja
- Periodieke bijdrage
- Ja (€ 137,60 per maand)
- Reservefonds aanwezig
- Ja
- Onderhoudsplan
- Ja
- Opstalverzekering
- Ja
Energieverbruik in Amsterdam
Energielabel deze woning
Energielabel E
Publicatie energielabel:
Stroomverbruik per jaar
(Gemiddelde appartement in Amsterdam)
Gasverbruik per jaar
(Gemiddelde appartement in Amsterdam)
* Cijfers zijn afkomstig van het CBS en bedoeld als indicatie en kunnen verschillen voor deze woning
Indicatie hypotheeklasten
Eigen inleg:
Spaargeld / overwaarde
Rente:
Laagste 10-jaars rente
Laagste 10-jaars rente
2,78% - Centraal Beheer Groen... - NHG
3,04% - Centraal Beheer Groen... - 80%
Laagste 20-jaars rente
3,29% - Centraal Beheer Groen... - NHG
3,52% - Centraal Beheer Groen... - 80%
Laagste 30-jaars rente
3,41% - Centraal Beheer Groen... - NHG
3,7% - Argenta Groen Hypotheek... - 80%
Hypotheek:
Bruto maandlasten: € 0 p/m
Netto maandlasten: € 0 p/m
Hoe berekenen we dit?
Het rentepercentage is gebaseerd op de laagste 10 jaars vaste rente voor één hypotheekdeel. De vermelde rente (3.04% zonder NHG) is gecontroleerd op 16-02-2026. Deze berekening is gebaseerd op een annuïteitenhypotheek die volledig wordt afgelost, waarbij de maandlasten gedurende de gehele looptijd gelijk blijven. De werkelijke rente en netto maandlasten kunnen variëren, afhankelijk van uw persoonlijke situatie en de hypotheekverstrekker. Raadpleeg een financieel adviseur voor een nauwkeurige berekening en advies. Aan deze berekening kunnen geen rechten worden ontleend; het dient enkel als indicatie.
Documentatie
Kadastrale kaart
Leefomgeving
Plattegronden PDF
Brochure
2025-akte-van-levering-pijnackerstraat-10-1
2025-bag-pijnackerstraat-10-1
2025-belastingen-pijnackerstraat-10-1
2025-bestemming-pijnackerstraat-10-1
2025-bodemrapport-pijnackerstraat-10-1
2025-energielabel-pijnackerstraat-10-1
2025-erfpachtgegevens-pijnackerstraat-10-1
2025-gemeentelijke-monument-pijnackerstraat-10-1
2025-jaarrekening-2022-pijnackerstraat-10-1
2025-jaarrekening-2023-pijnackerstraat-10-1
2025-jaarrekening-2024-pijnackerstraat-10-1
2025-lijst-van-zaken-pijnackerstraat-10-1
2025-nen2580-pijnackerstraat-10-1
2025-ordekaart-pijnackerstraat-10-1
2025-overstap-erfpacht-pijnackerstraat-10-1
2025-parkeren-pijnackerstraat-10-1
2025-perceel-pijnackerstraat-10-1
2025-splitsingsakte-2001-pijnackerstraat-10-1
2025-splitsingsakte-2003-pijnackerstraat-10-1
2025-splitsingsakte-2008-pijnackerstraat-10-1
2025-splitsingstekening-pijnackerstraat-10-1
2025-vragenlijst-pijnackerstraat-10-1
2025-vve-balans-2024-pijnackerstraat-10-1
2025-vve-begroting-2025-pijnackerstraat-10-1
2025-vve-kopie-opstalverzekering-pijnackerstraat-10-1
2025-vve-mjop-pijnackerstraat-10-1
2025-vve-notulen-2023-pijnackerstraat-10-1
2025-vve-notulen-2024-1-pijnackerstraat-10-1
2025-vve-notulen-2024-2-pijnackerstraat-10-1
2025-vve-pijnackerstraat-10-1
2025-woz-pijnackerstraat-10-1
WOZ waarderapport
BAG uittreksel
Bezoek onze website
Bezichtiging
Bod uitbrengen
Waardebepaling
Zoekopdracht
Alles downloaden
Zonnegrenzen bekijken
Op de kaart
Inwoners in Amsterdam
Cijfers voor postcodegebied 1072
- Totaal aantal inwoners
- 13730 inwoners
- Mannen
- 49%
- Vrouwen
- 51%
Inwoners in Amsterdam
Cijfers voor postcodegebied 1072
- tot 15 jaar
- 9%
- 15 tot 25 jaar
- 11%
- 25 tot 35 jaar
- 49%
- 45 tot 65 jaar
- 22%
- 65 en ouder
- 10%
Huishoudens in Amsterdam
Cijfers voor postcodegebied 1072
- Eenpersoons zonder kinderen
- 64%
- Meerpersoons zonder kinderen
- 22%
- Huishoudens zonder kinderen
- 86%
Huishoudens in Amsterdam
Cijfers voor postcodegebied 1072
- Huishoudens met één kind
- 5%
- Huishoudens met meerdere kinderen
- 9%
- Huishoudens met kinderen
- 14%
Woningen in Amsterdam
Cijfers voor postcodegebied 1072
- Woningen voor 1945
- 85%
- Woningen tussen 1945 en 1965
- 1%
- Woningen tussen 1965 en 1975
- 1%
- Woningen tussen 1975 en 1985
- 2%
- Woningen tussen 1985 en 1995
- 8%
Woningen in Amsterdam
Cijfers voor postcodegebied 1072
- Woningen tussen 1995 en 2005
- 2%
- Woningen tussen 2005 en 2015
- 1%
- Woningen na 2015
- 1%
- Huurwoningen
- 70%
- Koopwoningen
- 20%
Overige in Amsterdam
Cijfers voor postcodegebied 1072
- Gemiddelde WOZ waarde
- € 438.000,-
- Personen onder de 65 met uitkering
- 9%
Overige in Amsterdam
Cijfers voor postcodegebied 1072
- Adressen per km²
- 10051
- Stedelijkheid (schaal 1 op 5)
- 100%
Korte feiten over Amsterdam
Amsterdam is de hoofdstad van Nederland. De stad, in het Amsterdams ook Mokum genoemd (afkomstig uit het Jiddisch), ligt in de provincie Noord-Holland, aan het IJ, het Noordzeekanaal en de monding van de Amstel. De stad ligt in de gelijknamige gemeente Amsterdam en heeft 873.338 inwoners (1 januari 2021), Groot-Amsterdam telt 1.459.402 inwoners.
Indien u vragen heeft of u wilt een bezichtiging inplannen, dan kunt u gebruik maken van het formulier hiernaast. Er zal daarna op korte termijn contact met u worden opgenomen.
Herengracht 427
1017 BR, Amsterdam
020-8005004 dimitri@lankhorstmakelaars.nl www.lankhorstmakelaars.nlContact opnemen
Dimitri, jouw makelaar in Amsterdam
Ben je van plan om je woning te verkopen, een nieuw huis te kopen, of heb je hulp nodig bij het huren of verhuren van een pand? Dan kan Lankhorst Makelaars je uitstekend bijstaan. Het proces is echter niet zo eenvoudig. We hebben een compact team van toegewijde medewerkers die altijd handelen op basis van onze kernprincipes.
Ons makelaarskantoor, Lankhorst Makelaars met aan het hoofd Dimitri Lankhorst, is een veelzijdig en onafhankelijk bureau gevestigd op Herengracht 427, in het hartje van Amsterdam. We bieden diensten aan zoals verkoop, aankoop, verhuur, verhuring, expat huisvesting, bouwadvies, begeleiding van vastgoedprojecten en investeringen, voor zowel particuliere als zakelijke klanten.
Met een op maat gemaakte benadering, praktische aanpak en volledige transparantie, biedt Dimitri Lankhorst begeleiding en advies in elke fase van het vastgoedproces. We geloven in het bouwen van bruggen en dijken en streven naar langdurige samenwerkingen.
Sinds 1994 hebben we ook ervaring in het bepalen van de waarde van vastgoed en het positioneren van panden op de markt. Samen met gerespecteerde partners bieden we advies over styling, fotografie, financieringstrajecten, bouw en projectontwikkeling, tegenexpertise met betrekking tot de WOZ-wet, juridische zaken en duurzaamheid.
Nieuwste reviews
-
Brouwersgracht 145 3
Dimitri Lankhorst neemt uitgebreid de tijd voor je en luistert goed naar je wensen. Daarnaast verleent hij geweldige service en advies. Heel...
-
Juliana van Stolbergstraat 8 1
Altijd goed bereikbaar en snel antwoord. Goed en duidelijk advies voor het uitbrengen van een bod en goede contacten voor bouwkundige keurin...
-
Van Oldenbarneveldtstraat 91 H
De Heer Lankhorst is een makelaar als geen ander. Je voelt je in zijn warme gezelschap meteen op je gemak gesteld en voorzien van het gevoel...